Комфортные офисы площадьюот 230 м²

Возможность жить и работать, назначать встречи на территории одного пространства

InstagramInstagramInstagram
slide
ОБ ОФИСАХ

МФК «Abu Dhabi Plaza» предлагает
офисные помещения для бизнеса, которые сочетают в себе комфорт и современный дизайн

Экосистема «город в городе» значительно экономит время и оптимизирует рабочие процессы и личные планы в ритме большого города, позволяя работникам оставаться в центре событий

230 м²минимальная аренда
12 тысрабочих мест
85 тысквадратных метров под аренду
4 этажаподземного паркинга
00 / 00

Детали комфорта

promo-LEED_Zertifizierung_USGBC_Leadership_in_Energy_and_Environmental_Design_v2-700x526-1
Сертификат LEED
promo-_DSC7281
Естественный свет
promo-DSC00123
Два офисных здания класса А

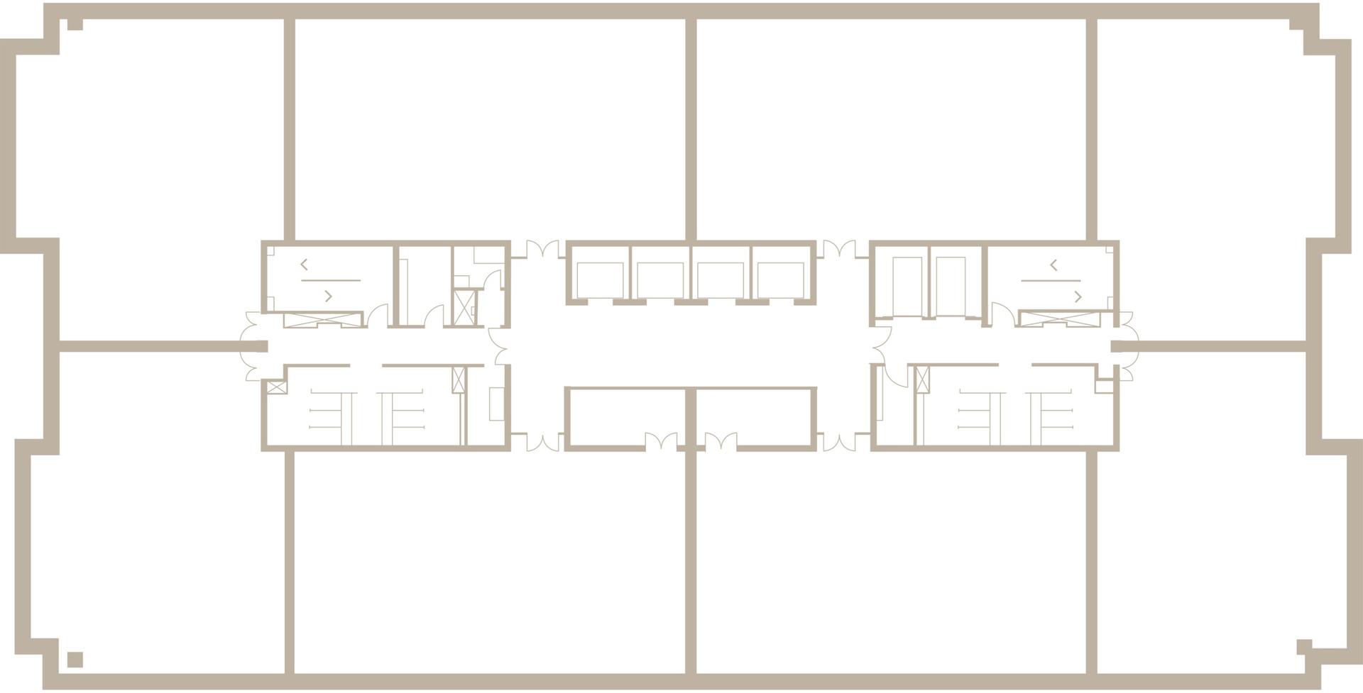
Схема этажа

230 м² минимально арендуемая площадь. Вы также
 можете арендовать несколько частей этажа сразу

Офисы (1)

38.4 MB

image 41
bg

Уютные
 апартаментыот 55.7 м2

Возможность жить и работать, назначать встречи на территории одного пространства

Аренда
офисов от 230 м2

Заполните заявку 
и мы свяжемся с вами
Название компании *
Номер телефона *
E-mail *